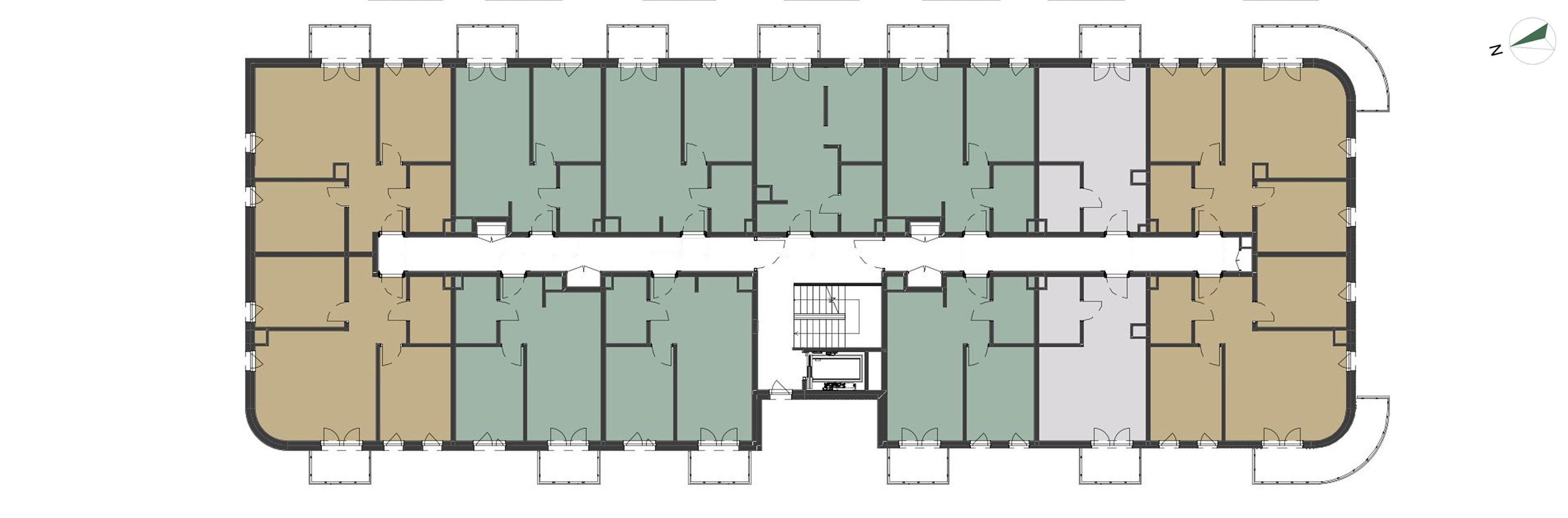
Budynek 1 - Piętro 4

wolne

rezerwacja

umowa

sprzedane

Mieszkania sprzedane: 0
Mieszkania z podpisaną umową rezerwacyjną: 0

Lista mieszkań